Firmensitz

Bürokonzeption, Innenarchitektur, Bauüberwachung * Gestalterische Gesamtbetreuung des neuen Firmensitzes der bright! GmbH mit über 500 qm Bürofläche

An den neuen Firmensitz des Kreativunternehmens wurden besondere Anforderungen gestellt:                               bright! arbeitet interdisziplinär im Bereich der kreativen Eventwelt. Zu den Leistungen der bright! GmbH zählen neben der Full-Service Umsetzung von Events jeder Art, auch multimediale und interaktive Konzepte für Veranstaltungen und Messen. Es sollte eine adäquate Arbeitsumgebung für das Unternehmen geschaffen werden, die das Firmenselbstverständis bestmöglich transportiert.
Sämtliche anfallenden Arbeitsprozesse wurden analysiert und im Hinblick auf ihre räumliche Zuordnung neu bewertet.  In einem zweiten Schritt wurden diese neu definierten Arbeitsprozesse in den Räumlichkeiten sinnvoll verortet. 
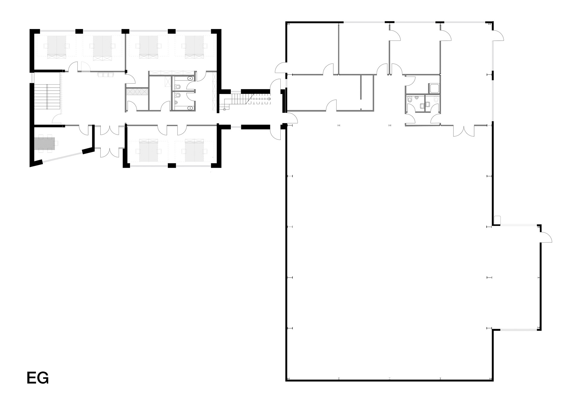
Im EG entstanden drei voneinander autarke Doppelbüros zu Vermietzwecken, sowie ein gemeinschaftlich nutzbarer Meetingraum und eine Teeküche. Im angrezendenen Bereich der Lagerhalle wurden neben Logistikflächen auch Werkstätten und ein Studio für Workshops intergriert. Das OG des Bürotraktes ist als offener und lichtdurchfluteter Raum mit einer definierten Zonierung, die sich an den verschiedenen Arbeitsschritten orientiert, ausgeführt. Im Bereich der Lagerhalle ermöglicht eine partieller Überbau der Fläche mit Stahlbau einen weiteren, über 100 qm großen, Raum auf Büro-Niveau. In dieser gemeinschaftlichen Lounge kocht und isst das Team mittags gemeinsam, aber auch legere Meetings können hier abgehalten werden.
2013_Kunde: Giegerich Immobilien GbR
Konzept
Realisierung

Weitere Projekte

Back to Top